Aller au contenu principal

Van Gogh – Croix

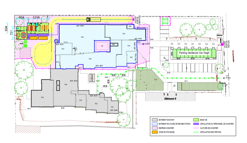
  • Hauts-de-France Réhabilitation
  • Localisation : Croix

Adresse : 

Rue Louis Seigneur, Croix

Organigramme

  • Directeur Exploitation adjoint : Laurent
  • Directeur Travaux : Laurent 
  • Conducteur de Travaux : Baptiste 
  • Chef de Chantier : Fabrice 
  • Animateur SQE : Guillaume 
  • Responsable Paie : Aurèlie 

Personnes à contacter

En cas d’absence, prévenir votre chef de chantier.
Pour l’envoi de documents administratifs, les expédier à l’attention de : Corinne 

Entreprise RABOT DUTILLEUL CONSTRUCTION
10 avenue de Flandre
59290 WASQUEHAL

Horaires de travail:

Lundi au jeudi à 07h30-12h00 / 12h45-16h15
Vendredi à 07h30-12h00 / 12h45-15h15
Les horaires pourront être adaptés en fonction des besoins du chantier ou des conditions climatiques.

Projet:

Réhabilitation énergétique et remise au normes des installations électrique

Date clés:

Durée prévisionnelle des travaux à  12 mois
Date de réception à Octobre 2026

Chiffres clés:

Effectif en point 25 personnes,

Lot en part propre : électricité, Habillage intérieur bois